Puutalo brochure
In among the stuff left behind by the previous owner we found some plans for the weird porch and car port extension than included plans for the house, that even if reverse didn’t quite match “as built”.
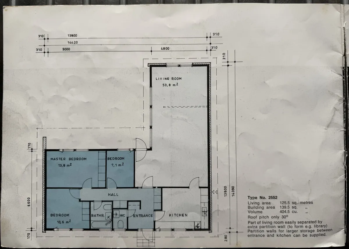
Later on we found original English language 1975-ish Puutalo brochure and that’s where the plans had come from.
I’ve not seen this online so I’ll post it here in full. Just photos for now but we plan to get it copied properly at some point and perhaps get a print to put up the wall. It certainly gives us food for thought as to where we go material and finish* wise in our light refurb.
- No pun intended but Puutalo is/was a Finnish manufacturer 🙄
Our house is/was Type No 2552 but mirrored. Again no pun intended but we do have mirrors absolutely everywhere.
